QCAD es una aplicación de diseño asistido por ordenador en dos dimensiones. Con QCAD puede crear diseños técnicos como plantas de edificios, interiores, piezas mecánicas o esquemas.
Encontrará más información sobre QCAD y otros productos de RibbonSoft en nuestra página web (en inglés).
Esquemas
Las siguientes tablas muestran la interfaz de usuario de QCAD en diferentes sistemas operativos.
QCAD en Windows. |
QCAD en Mac OS X. |
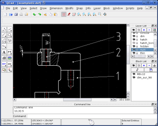
QCAD en Linux / X11. |
Animaciones
Estas animaciones muestran algunas características fundamentales de QCAD.
Líneas y atributos. |
Técnicas de construcción. |
Plataformas soportadas
QCAD ha sido probado en las siguientes plataformas:
- Windows 32bit / 64bit XP, 2000, Vista, 7, 8
- Mac OS X 10.6 - 10.8
- Linux 32bit / 64bit
Características principales
- Livelli
- Grupos (Blocchi)
- 35 fuentes CAD incluidas
- Unidades métricas e imperiales
- entrada / salida DXF
- Impresión a escala
- Más de 40 herramientas de construcción
- Más de 20 herramientas de modificación
- Creación y modificación de puntas, líneas, arcos, cercos, elipses, curvas spline, polilíneas, testigos, cotizaciones, retinas, renominaciones, imágenes rasterizadas
- Varias posibilidades de selección de elementos
- Ajustes a objetos
- Herramientas de selección
- Librería de partes con más de 4800 partes CAD
- Interfaz de scripting
Descargar
Manual de referencia para el usuario
![]() | Manuale de riferimento per l'utente(PDF, Community Edition )Versión: |






